Rijksstraatweg 214 c Verkocht

3956 CW, Leersum

Omschrijving

Welkom op de Rijkstraatweg 214 C in Leersum, een plek die je zal verrassen. Deze nieuw gebouwde vrijstaande woning biedt de toekomstige eigenaar de mogelijkheid om een comfortabel thuis te realiseren met alle voorzieningen op de begane grond.

Je stapt binnen in een grote en lichte open ruimte op dit moment uitgerust met een houtkachel en een strakke complete keukenopstelling met diverse inbouwapparatuur.
De grote open ruimte is flexibel en nog in te delen. Het biedt de mogelijk voor een woonkamer, keuken, slaapkamer en badkamer. Volgens de verleende vergunning dient op de aangewezen plek een voordeur met entreehal gerealiseerd te worden.

Daarnaast beschikt de woning over een aparte ruimte met toiletten en doucheruimtes. Deze ruimte kan worden omgetoverd tot een badkamer en eventuele bijkeuken/wasruimte.
Het terras ligt op het zonnige zuiden, hier geniet je van privacy en al vroeg in het voorjaar van de eerste zonnestralen.
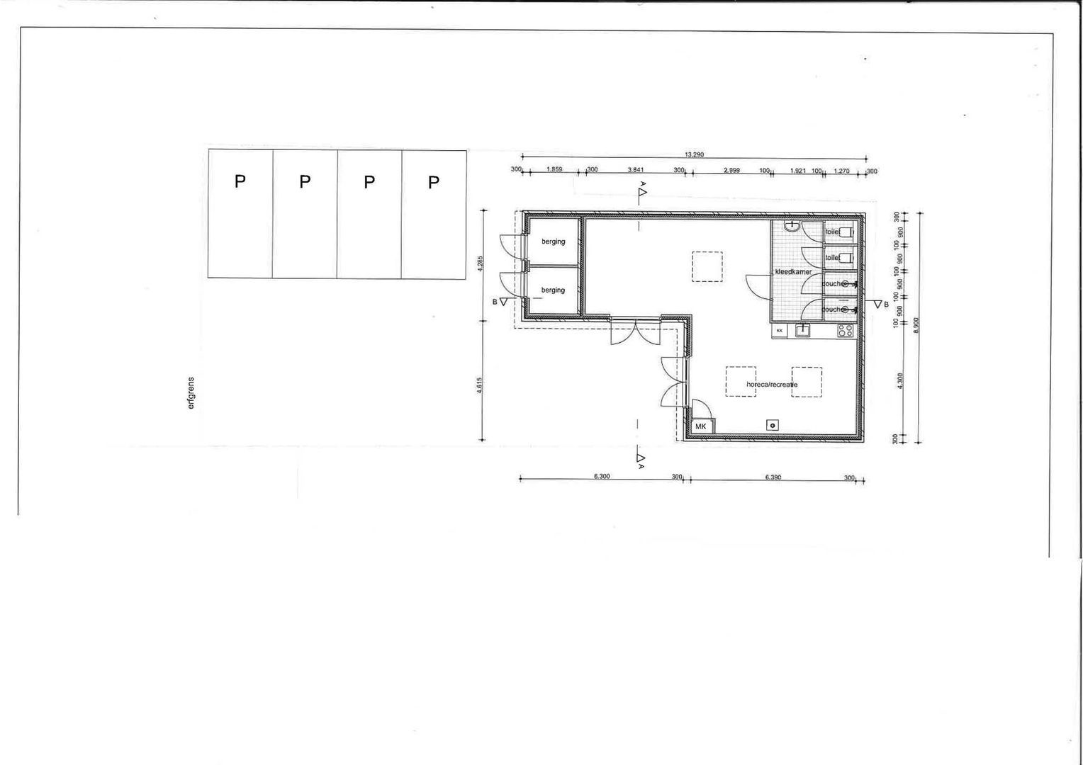
Het pand zelf is voorzien van twee eigen parkeerplekken, wat het gemak van parkeren en toegankelijkheid garandeert.

Bijzonderheden:

De gemeente Utrechtse Heuvelrug heeft een woonvergunning vergund mits er door de koper van de woning aan de volgende eisen wordt voldaan:
- De woning dient een entree te krijgen, door een voordeur te plaatsen met aansluitend de hal aan de zijgevel.
- Installeren van een warmtepomp dient verplicht te worden uitgevoerd.
- Plaatsen van zonnepanelen, tenminste 7 stuks.
- Een gedeelte van de bestrating moet vervangen worden door groenstrook/tuin (zie hiervoor toegevoegde
plattegrond).
- Nutsvoorziening dient aangevraagd te worden voor water en elektra.
- Glasvezel aansluiting ligt aan de Rijksstraatweg.
- Verleende vergunning is op aanvraag.
- Recht van overpad naar de woning.

De woning is nu nog in gebruik als clubruimte voor mountainbike clinics.

Indeling
Je stapt binnen in een grote, en door het plaatsen van de lichtkoepels, lichte open ruimte voorzien van een strakke keukenopstelling (2021) met inductiekookplaat, afzuigkap, combimagnetron, koelkast, vriezer en vaatwasser. Ook zie je hier een sfeervolle houtkachel met openslaande deuren naar het terras. Vervolgens kom je in een aparte ruimte, nu in gebruik als kleedruimte inclusief 2 toiletruimtes, 2 doucheruimtes en de aansluiting voor de wasmachine.
De twee bergingen zie je aan de voorzijde van het pand. Eventueel kun je deze ook samenvoegen als één berging. Ook is het mogelijk om de bergingen toe te voegen aan het woongedeelte waardoor er een nog grotere leefruimte ontstaat.

Extra gegevens:
- Bouwjaar: ca. 2021
- Kadastrale gegevens: Gemeente Leersum sectie C nr. 3037
- Verwarming: vloerverwarming
- Inhoud: ca. 255 m3
- Woonoppervlakte: ca. 69 m2
- Parkeerruimte: ja, op eigen terrein
- Ligging van terras: zuid
- Staat van onderhoud: goed
- Verleende vergunning is op aanvraag
- Recht van overpad naar de woning

Kenmerken

Vraagprijs
€ 429.000 k.k.
Status
Verkocht
Oplevering
In overleg

Bouw

Woonhuis
Eengezinswoning, Vrijstaande woning
Soort bouw
Bestaande bouw
Bouwjaar
2021
Onderhoud binnen
Goed
Onderhoud buiten
Goed

Oppervlakten en inhoud

Oppervlakte
69m²
Perceel
562m²
Inhoud
255m³

Indeling

Kamers
1
Verdiepingen
1

Buitenruimte

Ligging
In bosrijke omgeving
Tuin
Voortuin
Voortuin
Zuid, 132m², 1100×1200cm
Schuur
Vrijstaand steen

Energie

Energielabel
A+++
Isolatie
Volledig geisoleerd
Warm water
C.V.-ketel

Locatie

Bereken route
[ { "address": "Rijksstraatweg 214", "zipCode": "3956 CW", "city": "Leersum", "lat": 52.0145172, "lng": 5.4208157, "heading": 0, "pitch": 0 } ]

Plattegronden

Interesse? Plan een bezichtiging

Geef hier uw voorkeursdata en tijd aan of stel uw vraag

Deze woning is Verkocht

Uw bericht is naar ons verzonden. Wij nemen zo snel mogelijk contact met u op.

Sorry, we kunnen helaas niet met zekerheid vaststellen of je een mens of een geautomatiseerde bot/spammer bent. Hierdoor kunnen we het formulier dat je hebt ingevuld niet verzenden. Probeer het opnieuw of neem direct contact op met de makelaar via e-mail.

Er is iets mis gegaan met het versturen van het formulier.
Controleer of u alle velden (goed) heeft ingevoerd en probeer het nog een keer.

Wilt u een bezichtiging plannen?

recaptcha
reCAPTCHA
PrivacyTerms

Heeft u een vraag?

Wij zijn maandag t/m vrijdag bereikbaar van 08:45 tot 17:00 uur

Bel 0343 - 456 490

Bereikbaar via WhatsApp